Startseite » Immobilien » 4-Zi.-ETW im 2. OG mit viel Raum und klassischem Grundriss

Am Hühnerstein 30, 61352 Bad Homburg, Deutschland
Zu Verkaufen
619.900€
Objekt ID :
KB00019/G1/E3/Eh2
In Bad Homburg Ober-Erlenbach entsteht ein hochwertiges Neubauprojekt mit modernen Eigentumswohnungen, das Raum für echtes Zuhause-Gefühl bietet. In ruhiger Wohnlage werden 2 bis 4 Zimmer-Wohnungen mit durchdachten Grundrissen realisiert, die sich an unterschiedliche Lebensphasen anpassen. Mit nur 15 Wohnungen in Haus 2 bleibt das Wohnen überschaubar, persönlich und angenehm ruhig. Helle Räume, klare Grundrisse und private Außenflächen wie Terrassen mit Gartenanteil, Balkone oder Dachterrassen schaffen Orte zum Ankommen und Wohlfühlen. Das Neubauprojekt wird im energetisch effizienten KfW-55 Standard errichtet und verbindet zeitgemäßes Wohnen mit nachhaltiger Bauweise und langfristigem Werterhalt.
Ober-Erlenbach gehört zu den gefragten Wohnlagen von Bad Homburg und bietet eine gelungene Mischung aus Ruhe, Natur und guter Erreichbarkeit. Die Straße Am Hühnerstein liegt in einem modernen Wohngebiet mit familiärem Umfeld und gewachsener Nachbarschaft. Hier wohnt man entspannt und dennoch gut angebunden. Einkaufsmöglichkeiten, Kindergärten, Schulen und ärztliche Versorgung befinden sich in der näheren Umgebung. Die Innenstadt von Bad Homburg sowie Frankfurt am Main sind schnell erreichbar, gleichzeitig laden Felder, Grünflächen und Naherholungsgebiete direkt vor der Tür zu Spaziergängen, Sport und Freizeit im Grünen ein. Eine Lage, die Alltag und Erholung selbstverständlich miteinander verbindet.
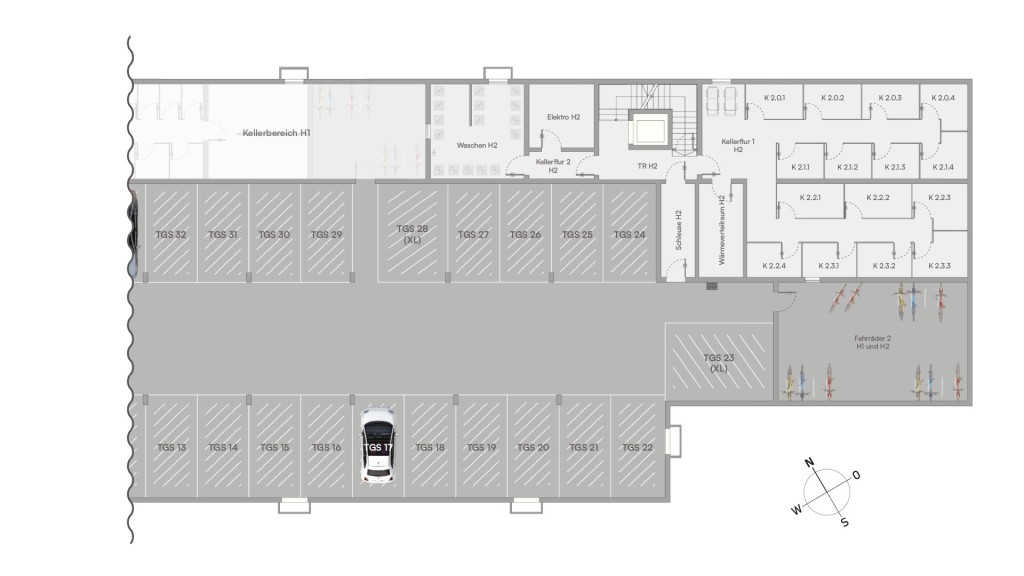
Die Ausstattung der Wohnungen ist auf Komfort, Qualität und Alltagstauglichkeit ausgelegt. Fußbodenheizung in allen Wohnräumen sorgt für ein angenehmes Raumklima. Dreifach verglaste Fenster und elektrisch betriebene Rollläden bieten Ruhe, Energieeffizienz und zusätzlichen Wohnkomfort. Hochwertige Bodenbeläge, moderne Bäder mit Marken-Sanitärobjekten sowie sorgfältig ausgewählte Materialien schaffen ein stimmiges Gesamtbild. Balkone, Terrassen und Dachterrassen erweitern den Wohnraum nach draußen. Ein Aufzug verbindet alle Etagen komfortabel mit der Tiefgarage. Die Wärmeversorgung erfolgt über Fernwärme, ergänzt durch eine Photovoltaikanlage im Mieterstrommodell. Eine vorbereitete Ladeinfrastruktur für Elektromobilität in der Tiefgarage rundet das nachhaltige Wohnkonzept ab.
Dieses Bauvorhaben wird von der familiengeführten Unternehmensgruppe Kleespies realisiert, die seit 1949 im Rhein-Main-Gebiet verwurzelt ist. Über mehr als 75 Jahre hinweg hat sich das Unternehmen einen Namen für hochwertiges, zuverlässiges Bauen gemacht und begleitet Familien seit Generationen auf dem Weg ins eigene Zuhause. Heute wird Kleespies in vierter Generation geführt und verbindet traditionelles Handwerk mit moderner Planung und zeitgemäßen Wohnkonzepten. Alle Leistungen von der Planung bis zur schlüsselfertigen Übergabe erfolgen aus einer Hand und werden von erfahrenen Bauleitern, Architekten und Fachingenieuren begleitet. Wer sich vorab ein eigenes Bild von Qualität, Materialien und Wohngefühl machen möchte, kann Musterwohnungen in Hattersheim oder Hanau besichtigen. Eine persönliche Terminvereinbarung ist jederzeit möglich.
Please enter the 6-digit OTP sent to your email.
Time remaining: 05:00